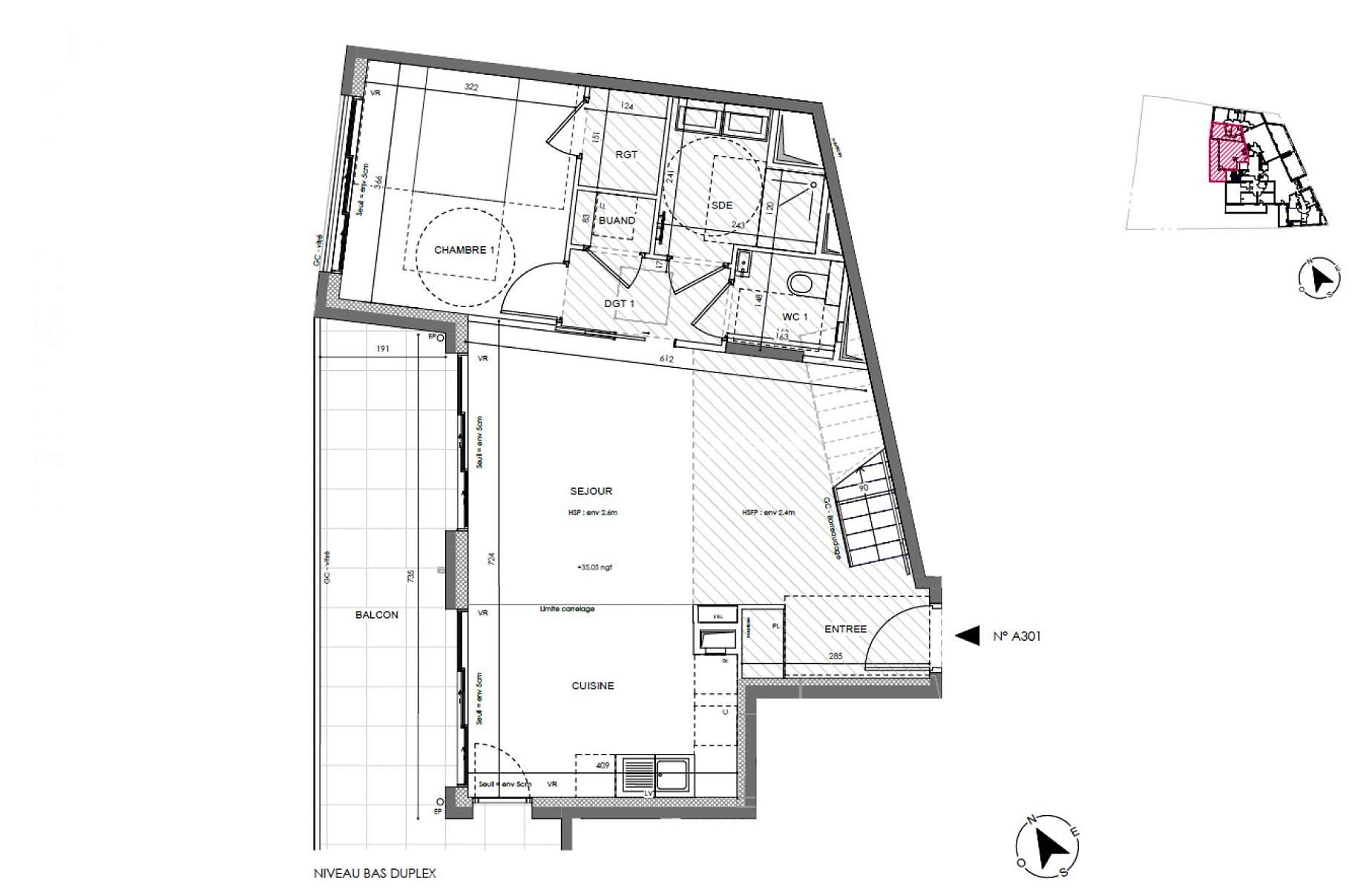
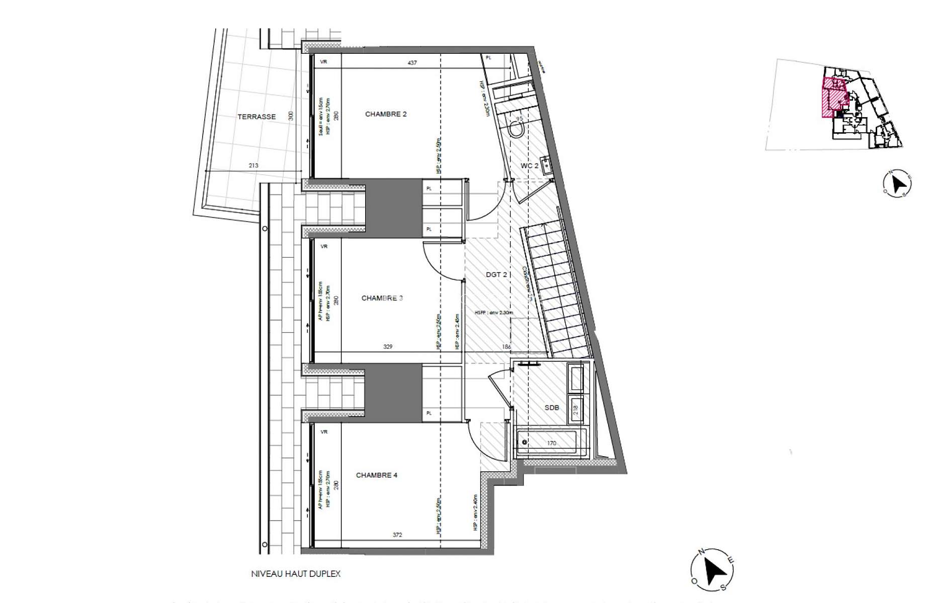
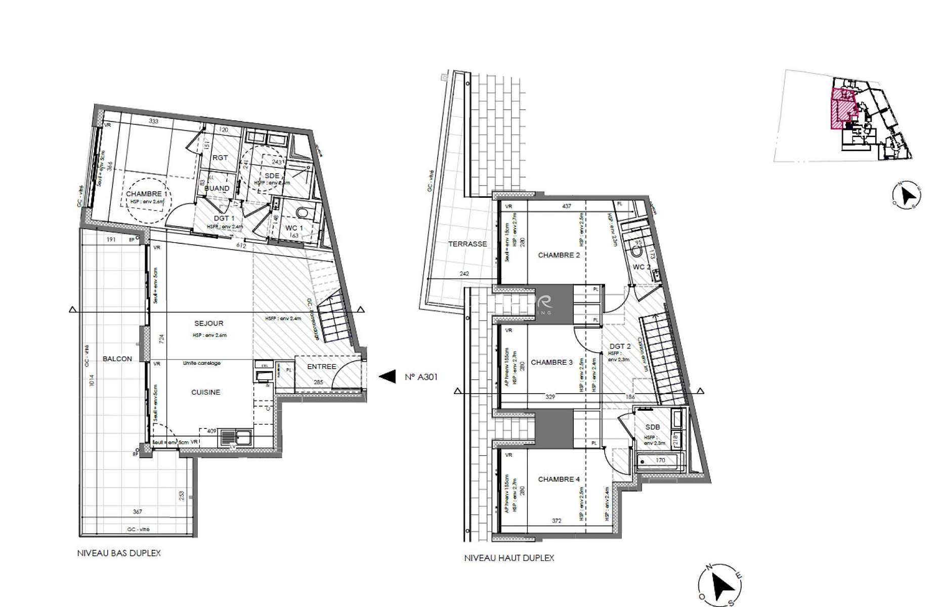
Four-bedroom duplex in a new development in Beaulieu-Sur-Mer - Ref 5007
1 850 000 €
8 photos
Request details
Add to "My selection"
Added
Send to a friend
Print
Buying process
Contact us
Send us your request for a property to buy on the French Riviera by filling out the request form, writing to info@serviceazur.com or calling +33 4 93 29 84 25.
SELECT A PROPERTY
Browse through our selection of over 500 luxury homes and apartments for sale on the Côte d’Azur to find the right property for you. In addition, our sales specialists will be happy to search for you the ideal home among all the real estate offers on the French Riviera.
GO THROUGH A PROPERTY PURCHASE PROCESS
Once you’ve found your dream home, we’ll guide you through the entire buying process, including transaction assistance at notary office.
BENEFIT FROM OUR PROPERTY MANAGEMENT SERVICE
Take advantage of our property management service from repairs, maintenance and renovations to tax declaration and bookkeeping.
Frequently Asked Questions
How to rent property on the French Riviera?
What are the main advantages of renting a house or apartment on the Côte d'Azur compared to staying in a hotel?
What are the most popular destinations for holiday rentals on the French Riviera?
How much does it cost on average to rent a house on the Côte d'Azur?
Contact us
At our office in Nice:
56 bis, av de la Lanterne
06200 Nice, France
By telephone:
+33 4 93 29 84 25
Opening hours:
From 9 am to 6 pm
Nice, France (GMT +2)








